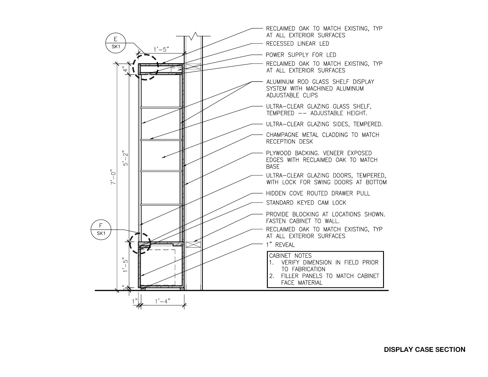
This display case was custom designed for a medical group's main lobby to display ongoing awards from the community. Glass shelving is flexible to accommodate a changing display. Materials coordinate with architectural interiors.