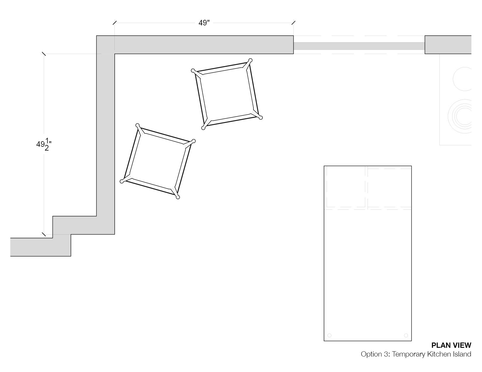
This counter height table in made from a raw steel structure with a dark wood butcher block top and light wood cabinetry. Removable drawer in yellow adds a modern pop of color. Table cabinetry allows for extra storage in your small kitchen and a comfy place to have breakfast in a small space. Table can be pushed again the wall during a party to create a bar or pulled to the center of the kitchen for additional counter space while cooking. Remove the stools and the table turns into bar cabinet and can be placed in the living room or dining room.