• Work
  • Kitchen Remodel
  • Apartment Bathroom Remodel
  • Women's Shelter
  • Display Case
  • SC Johnson: Project Honor
  • Church & Community Center
  • Assisted Living Community
  • EPT: Emergency Preparedness Trunk
  • Tech Office Remodel
  • Kitchen Island
  • Armory to Community Center
  • Bonded Sofa
  • Mia Chair
  • Babar Coatrack
  • Historic Building Renovation
Contact
About Me
Kelly Sanford
  • Work
  • Kitchen Remodel
  • Apartment Bathroom Remodel
  • Women's Shelter
  • Display Case
  • SC Johnson: Project Honor
  • Church & Community Center
  • Assisted Living Community
  • EPT: Emergency Preparedness Trunk
  • Tech Office Remodel
  • Kitchen Island
  • Armory to Community Center
  • Bonded Sofa
  • Mia Chair
  • Babar Coatrack
  • Historic Building Renovation
Contact
About Me

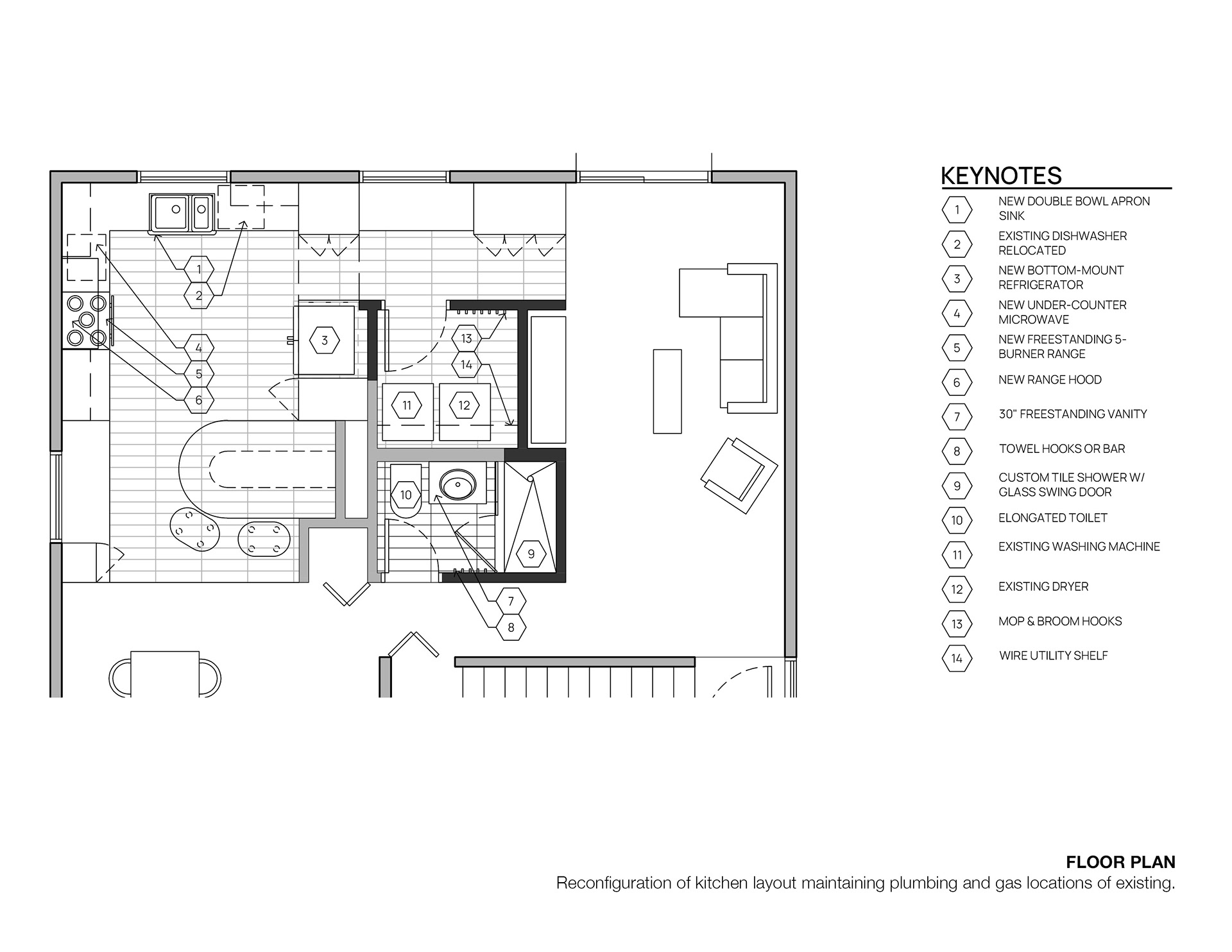
Kitchen Remodel

Kitchen remodel for a home built in the 90s. The kitchen size and orientation was reconfigured to connect to the dining room and provide an open layout to engage with the home.

↑Back to Top
Powered by Adobe Portfolio