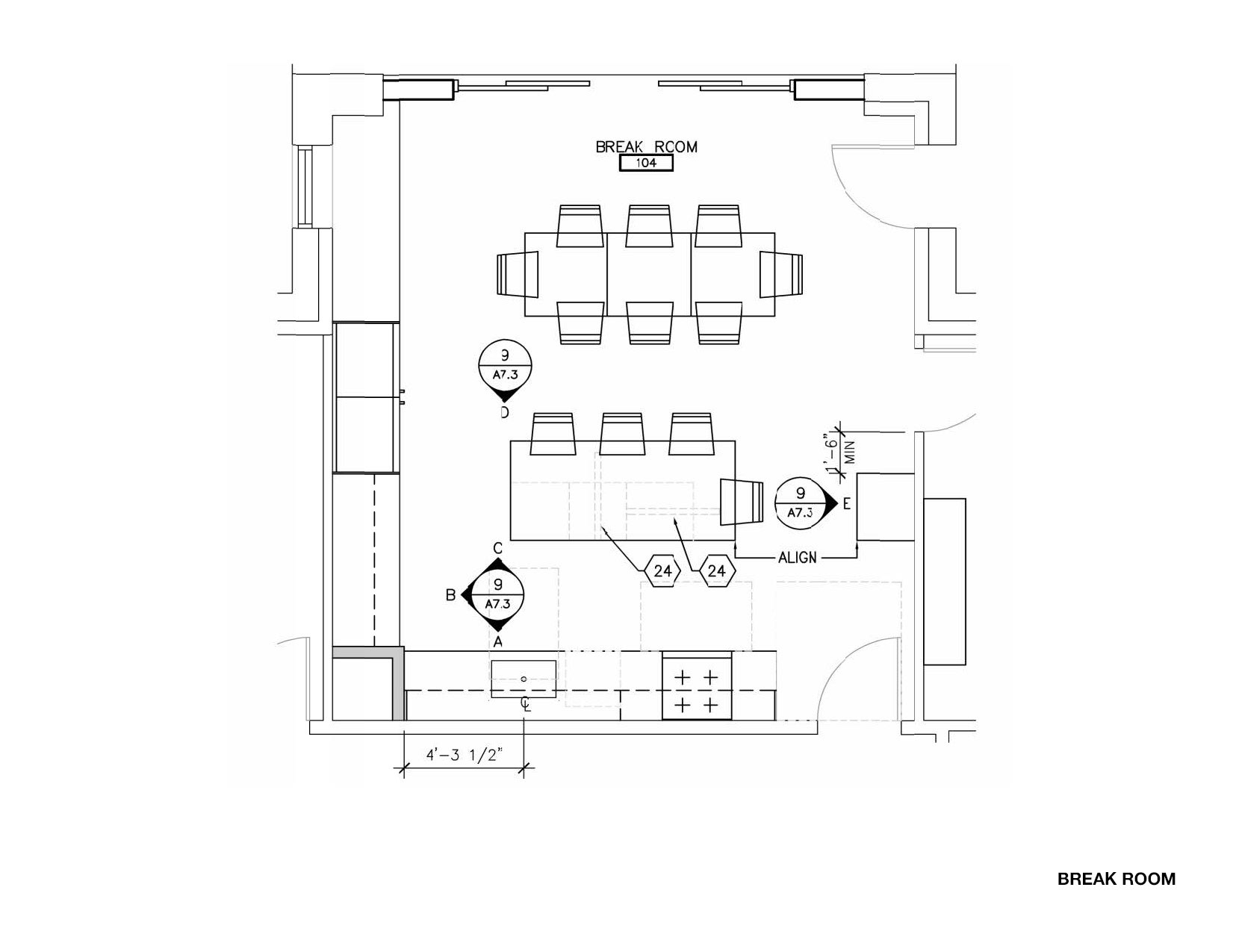
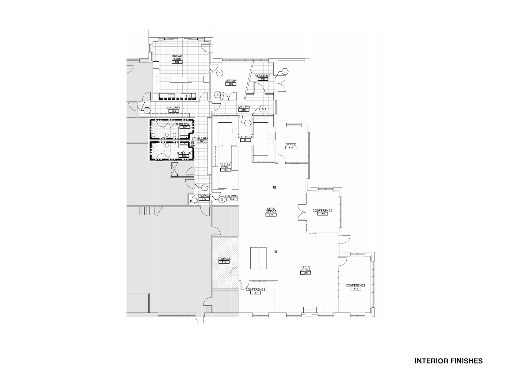
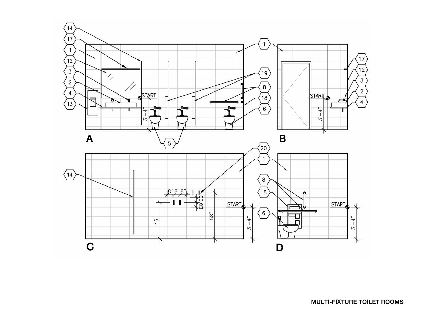
Interior office remodel for a tech company in Oregon. Remodel consisted on custom casework for key shared spaces to create a cohesive and organized aesthetic. Minimalist European lines define the design style.